
門をくぐると、やわらかな空気に包まれたあたたかな空間が広がります。
室内の建具や天井の細工には、随所に職人のこだわりが感じられ、
古民家ならではの落ち着いた風情が大切に残されています。
徒歩圏内には、望楼の芝や潮岬観光タワー、
そして潮岬の先端に広がる約10万㎡の大芝生。
雄大な景色と潮風を身近に感じられる、潮岬ならではのロケーションです。
居住用としてはもちろん、
週末のセカンドハウスや自然を楽しむ滞在の拠点としても魅力的。
本州最南端の地で、ゆったりとした時間を楽しめる一軒です。
![]() |
![]() |
![]() |
![]() |
![]() |
![]() |

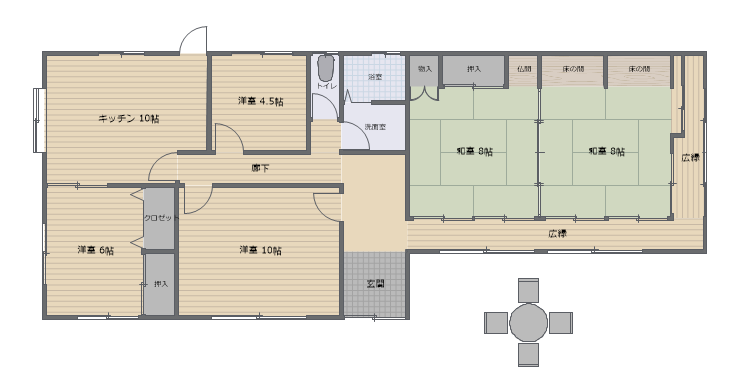
※図面と現況に相違がある場合は現況を優先します
| 物件名 | 潮岬 2707 |
|---|---|
| 所在地 | 串本町潮岬2707-40 |
| 販売価格 | 1,350万円 |
| 間取り | 5LDK |
| 構造 | 木造瓦葺平屋建 |
| 築年月日 | 昭和59年5月14日 |
| 建物面積 | 134.79㎡(40.77坪) |
| 土地面積 | 396.41㎡(119.91坪) |
| 土地権利 | 所有権 |
| 地目 | 宅地 |
| 都市計画 | 区域外 |
| 引渡 | 要相談 |
| 現況 | 居住中 |
| 取引態様 | 仲介 |
| 物件管理番号 | k-3 |
| 掲載開始日 | 令和8年3月6日 |
| 情報有効期限 | 令和8年6月6日 |
| 備考 |
※内覧は事前にご予約ください。 ※車庫は未登記につき表題変更登記後にお引き渡し。 |
- ※本サイトに掲載中の物件は情報更新日時点の情報であり、内容が変更になる場合があります。あらかじめご了承下さい。
- ※掲載中の物件が商談中もしくは成約済みとなっている場合があります。詳しくはお問い合わせ下さい。
- ※海抜高さ、周辺施設までの距離等は、インターネットでの検索によるものであり、その正確性を保証するものではありません。
- ※現況と図面が異なる場合は、現況優先とさせていただきます。
- ※ご成約の際には当社規定の仲介手数料と、それにかかる消費税が別途必要になります。
商号:アトム不動産
事務所所在地:和歌山県西牟婁郡すさみ町周参見2320-5
TEL:0739-34-4085 FAX:0739-34-2300 Mail:atomplan29@gmail.com
宅建許可番号:和歌山県知事(2)3896 担当:阿部





